主页
>
工程案例
>
首页
产品中心
干混砂浆设备
干混砂浆生产线
特种砂浆生产线
工程案例
新闻资讯
关于我们
联系我们
砂浆生产线案例
砂浆生产线案例
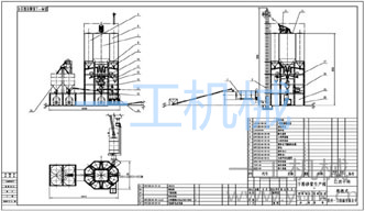
全塔式干粉砂浆生产线
03-11
顶置过渡砂仓塔楼式预拌砂浆生产
03-11
地面皮带秤布置干混砂浆生产线
03-11
站式简易干粉砂浆生产线
03-11
纯阶段式干混砂浆生产线
03-11
气力输送送砂特种干粉砂浆设备
03-11
自烘干特种砂浆生产线
03-11
利用建筑垃圾的预拌砂浆生产设备
03-11
配制砂机预拌砂浆生产线
03-11
配烘干机干混砂浆生产线
03-11
首页
上一页
2
3
4
下一页
末页
版权所有:苏州一工机械有限公司